As the official trailer/motorcoach dealer of Dragzine, Flying A Motorsports’ extensive lineup of new and used motorhomes, toterhomes, racecar trailers, stacker trailers, car haulers, and cargo trailers are highlighted here in our Rig of the Month feature.

The crew at Flying A Motorsports diligently has its finger on the pulse of what is hot concerning haulers and trailers for the motorsports community, and they took advantage of that with the purchase of some very popular bunkhouse motorhomes.
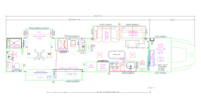
Just in time for the spring 2020 racing season, these units constructed by Renegade RV offer maximum sleeping and bathroom arrangements. The sleeping provisions include a mini-king bed in the master bedroom, a bunk area, a bunk over the cab, plus a fold-out sofa and dinette by Flexsteel.
Alan Cape, President of Flying A Motorsports, benefited from a defaulted order placed by another dealer. “I know that these motorhomes are popular, so I invested in the purchase to provide these to our customers.”
This Freightliner Cascadia chassis can well handle pulling duties, with a 600-horsepower Detroit powerplant, a six-speed Allison automatic transmission, and tandem rear axles. A Renegade universal adjustable bumper hitch system is rated at 30,000-pounds with a 2 5/16-inch ball hitch insert.
Compared to some haulers measuring up to 48-feet for the same amenities, the Renegade design comes in at 45-feet, which is a big plus for racers pulling a trailer.
These are features typically incorporated into a longer motorhome. This is a very popular rig we often order from Renegade for racers. This design will sleep seven, to eight, give or take, very comfortably – Alan Cape
“Both bathroom areas are equipped with showers,” Cape describes. “There is also an Aqua Hot heating and hot water system and three 15,000-BTU low profile ducted roof mount air conditioners to keep things warm and cool where needed.”
Other impressive features include an 18-cubic foot refrigerator, two-burner induction cooktop, and a sizeable 1.5-cubic foot stainless steel convection microwave. In the kitchen area, you will find all dovetailed cabinetry made of Maple wood, a stacked silverware drawer, and a large pull out pantry storage.
Throughout the interior, the padded walls are combined with a “soft touch” white padded vinyl ceiling. There is also a ceiling fan in the master bedroom and “infinity” ceiling lighting in the living area.
Cape describes the various entertainment sources, including a 43-inch LED smart TV in the living area, a 50-inch smart LED television in the bedroom, and multiple Blu-Ray players and stereo systems. Smaller flip-down televisions are located in both the bunk area and the 60- x 95-inch bunk quarters over the Freightliner driver cab area.

Inside the Freightliner cab, a back-up camera system is installed, with a trailer plug that operates through the cab’s radio system. There are also side bullet cameras to assist the driver.
To power all the entertainment, kitchen, and interior conveniences, there is an onboard 12.5-kilowatt Onan “Quiet Diesel” generator system plus Magnum 2800-watt power inverter with surge protected transfer switch. A 36-foot long power-retractable cord allows easy connection to an electrical shore supply.
To offer shower amenities for your team, the rig is outfitted with a 150-gallon fresh water supply and 225-gallons of holding tanks. The system also includes a whole-house water filter and a hose spigot in the saddle storage area.
When kicking back on the outside of the motorhome, a Carefree brand lateral arm awning can extend over an area with plenty of power locking baggage doors. The saddle storage compartments are finished with spray-on bedliner material surfaces for durability.

The current website offers a handy financing/payment calculator included on every sale page, along with insurance quote information. The new site will contain even more informational options to make shopping for your next hauler or trailer even more straightforward.
Cape finishes, “Flying A Motorsports has entered into a new cooperative effort with Elite Motorsports to offer our extensive inventories to each of our faithful customers. Each company has a strong clientele in different sectors of motorsports, so this is a great way to provide more hauler/trailer options from each of our individual product lines.”
Motorhome Specs:
- 2020 Renegade RV 45-foot bunkhouse motorhome
- Tandem axles, Disc brakes
- 2020 Freightliner Cascadia chassis
- Full 7-foot, 6-inch interior height
- Detroit 600-horsepower DD16
- Allison automatic transmission
- Tandem axle, disc brakes
- Renegade universal adjustable hitch
- Two full bath, front entry
- Three – 15,000 BTU low profile ducted roof-mount air conditioners
- Undercoated
- Larger bunk area
- Electric trailer brake controller w/ digital display
- Power locking baggage doors – where applicable
- Underbody led lights – color changing w/controller
- LED docking lights
- Side swing baggage doors with strut assist
- Trimark handle keyless entry – side door
- 4-Point auto leveling
- 12-foot side slideout, bed slideout, bunk slideout
- Bonded thermopane windows
- Manual day & night window shades
- Cab privacy curtain- rail type
- Warm Java decor package
- Infinity ceiling light – living area
- Pull out pantry
- Ceiling fan white – bedroom
- padded walls w/no wainscoting
- 110v and USB shelf in bunkover
- Bunk mats tan
- Flexsteel hide-a-bed and dinette
- Small king bed 66- x 80-inch with memory foam mattress
- Maple cabinetry – Italian nutmeg
- Polished porcelain floor tile
- Heated floor
- Polished solid surface countertops
- Tile backsplash
- Two-burner induction cook top
- Washer & dryer prep – stack style
- 1.5-cubic foot stainless steel convection microwave
- Samsung stainless steel 18-cubic foot residential french door refrigerator with ice maker
- 150-gallon fresh water tank, 75-gallon holding tanks
- Outside water spigot by holding tanks
- Samsung 50-inch Smart LED television with motrized slide in bedroom
- Blu-ray player in bedroom
- 360-degree uhf/vhf tv antenna w/power amp
- 43-inch smart led HDTV – living area
- Blu-ray player in living area
- Winegard Mission rt4035t in-motion satellite dish- receivers not included
- Samsung soundbar w/bluetooth & wireless subwoofer in living area
- Outside entertainment center with Samsung 43″ smart LED HDTV w/soundbar
You might also like
Big Finish: The IHRA Outlaw Nitro Series Shines At Darana Motorsports Park – Dunn
The IHRA finished its season strong. Here's who brought home the wins at Darana Motorsports Park – Dunn at the Outlaw Nitro Series finale.